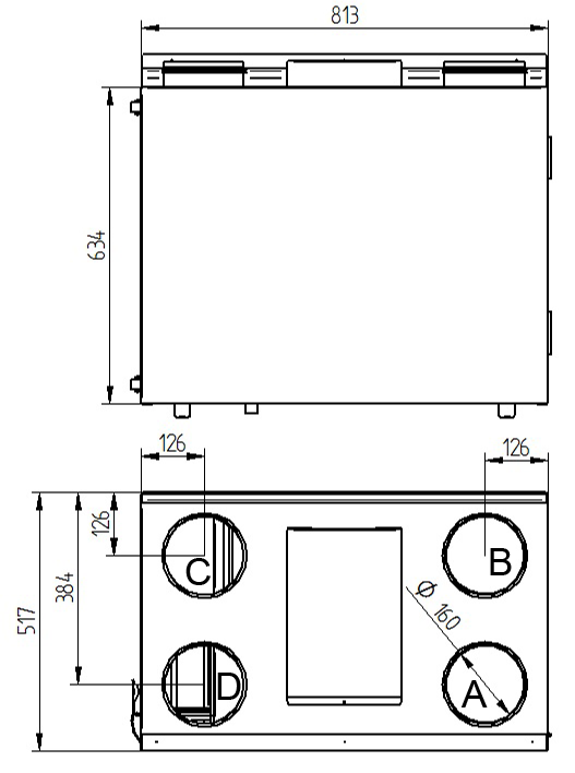
Rekuperator WANAS 415 V HI-TECH to nowoczesna centrala wentylacyjna z pionowym układem króćców służąca do wentylacji domów jednorodzinnych lub obiektów usługowych.
Nowa seria WANAS HI-TECH to najnowsze rozwiązania technologiczne zamknięte w kompaktowej centrali. Podświetlane logo oraz ścienny szklany sterownik do rekuperatora ucieszy miłośników nowoczesnego designu.
Wsłuchując się w oczekiwania i potrzeby użytkowników, projektanci wzbogacili nowe centrale m.in.o system automatycznego równoważenia przepływu powietrza, protokół komunikacyjny MODBUS RTU oraz automatyczną nagrzewnicę wstępną.
Rekuperator ze zintegrowanym modułowym systemem automatycznej regulacji powietrza nawiewanego FLOW CONTROL.
Centrala przeznaczona jest do wentylowania pomieszczeń o powierzchni do 210 m2.
Każdy rekuperator standardowo wyposażony jest nowoczesny sterownik ścienny z dotykowym przednim panelem szklanym. Dodatkowo rekuperator, dzięki wbudowanemu modułowi przewodowo łączy się z internetem i może być obsługiwany zdalnie.





